Profile Image

7 Homes Ltd

Architecture & Design
Auckland
RC, EPA, Construction Monitoring
RC, EPA, Construction Monitoring
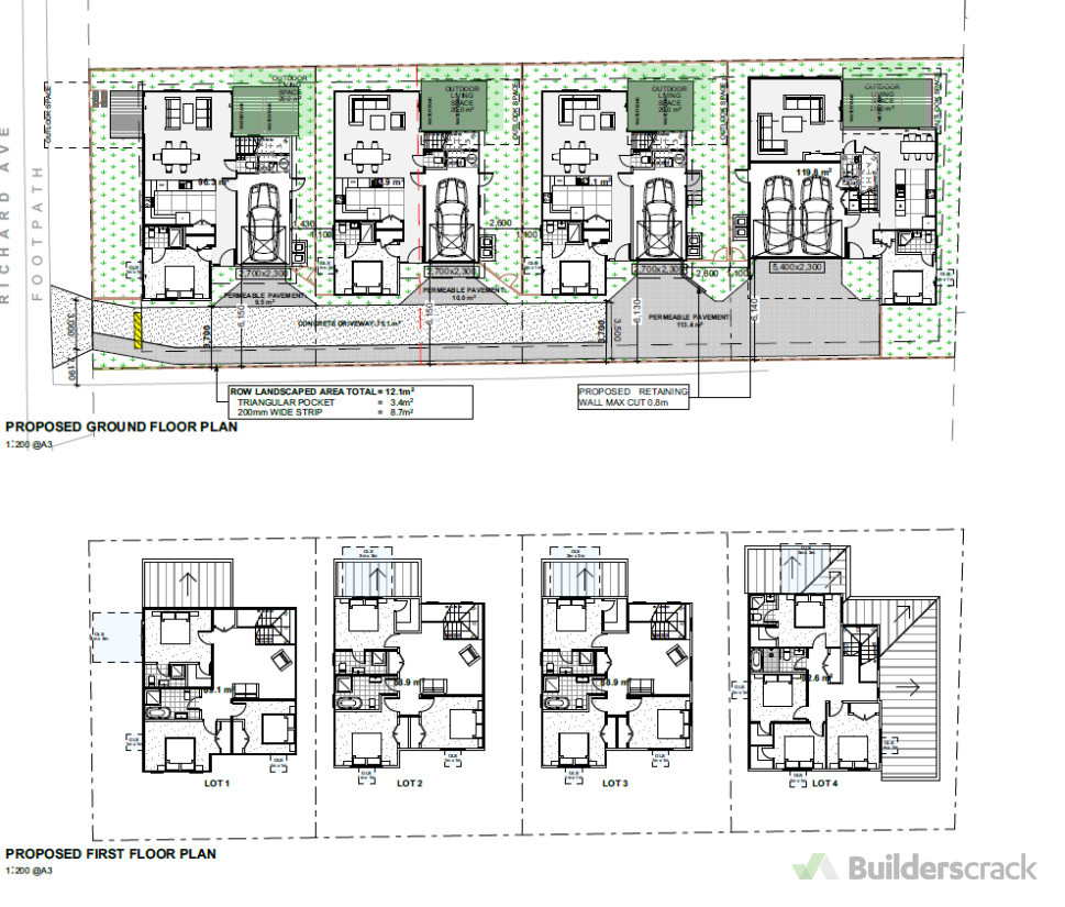
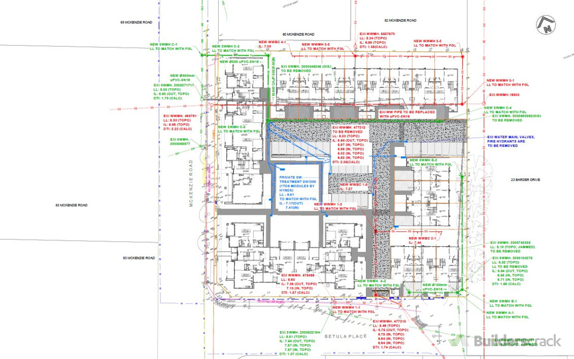
Approved EPA design
Approved EPA design
About

Hi, we have been working in this professional area for over 10 years from the beginning of the project to getting the title. While we specialise in major design, construction monitoring, and the construction industry, we can deliver high-quality work for your job.

What we do
Architecture & Design, Management, Planning & Consent, Surveying & Engineering
Areas served
Auckland, Franklin, Hauraki Islands, Manukau, North Shore, Papakura, Rodney, Waitakere, Waiheke Island
Business type
Company
Free quotes
Provided
Contact name & address

Dean

2a/17 Great South Road
0000
Verification

Shield ID Verified
Credentials

Accreditations
Chartered Professional Engineer
Insurance
Professional Indemnity
Memberships & Associations
Architectural Designers New Zealand
Association of Consulting and Engineering
Master Builders Association
Site Safe
Survey and Spatial NZ
Workmanship reviews

Spotlights
NEW to Builderscrack!

7 Homes Ltd has no review history as they are new to Builderscrack. Consider connecting — they might just be the right person for your job.

Get connected now with NZ’s largest trade professional network

Get started