Profile Image

Azimuth Design & Build

Architecture & Design
Dunedin
About

Offering two services:

DESIGN - DRAFTING - BUILDING CONSENTS
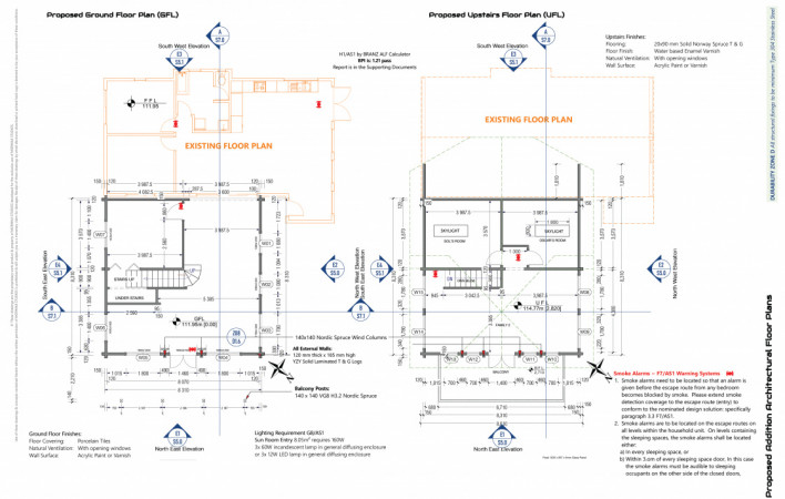
An Architectural Draftsman with Design LBP1 has been designing houses, aircraft hangers, farm buildings & more, since 1995.
Designs are done using a 3d modeling program that gives you a really good view of what is being designed and the 3d models are put online for you to visualize them on your phone or computer.
We will take your plans from draft concept through all the way to the building consent application. We will make the building consent application for you, it's all part of the service.

CONSTRUCTION & CARPENTRY
Qualified experienced Carpenter LBP.
Available for new builds, renovations, extensions & farm building construction.
Over 20 years experience in the trade.

Together or separately, we can cater for your building needs.
Thank you.

What we do
Architecture & Design
Areas served
Dunedin
Business type
Sole Trader
Verification

Shield ID Verified (expired)
Shield Address Verified (expired)
Credentials

Ask your tradie about their credentials. Not all work requires accreditations.

Get connected now with NZ’s largest trade professional network

Get started