Project

Large extension to lodge

Extension to existing lodge
Extension to existing lodge
Custom chimney & stained glass
Custom chimney & stained glass
Feature chimney lighting proposal
Feature chimney lighting proposal
Structural steel elements
Structural steel elements
Structural steel elements
Structural steel elements
Ground floor plan
Ground floor plan
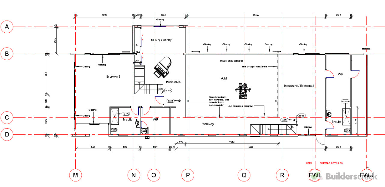
Upper floor plan
Upper floor plan

Project description

This project is budgeted at $2M+ and the extension replaces an existing, much older building. My client also had some specific, unique features which he wanted to have incorporated into the design such as the clock tower (with a school bell inside) and the stained glass feature glazing.

As the interior is very tall and the timber-lined ceiling vaulted, there is a significant amount of steel engineering required.

Last updated on 30-01-2026