Profile Image
BC Verified

Jason bui

Floor & Wall Tiling
Auckland
5.0
|
22 Reviews
|
17 Jobs completed
About

We take pride in our work and strive to exceed our clients' expectations. We would be honoured to have the opportunity to discuss how we can assist you with your construction needs. Please do not hesitate to contact us if you require any further information.

Best regards,
Jason Bui

What we do
Residential Building, Fencing & Gates, Kitchens & Bathrooms, Floor & Wall Tiling, Painting & Decorating
Areas served
Auckland, Franklin, Hauraki Islands, Manukau, North Shore, Papakura, Rodney, Waitakere
Business type
Company
Contact name & address

Jason

1 Greenmeadows Avenue
Manurewa East
Auckland 2102
Credentials

Accreditations
Licensed Building Practitioners
Memberships & Associations
New Zealand Certified Builders
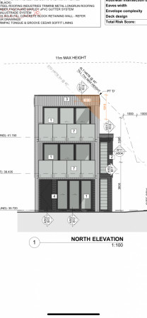
Projects

Showing 19 to 21 of 21 projects
Workmanship reviews

BC Rating 5.0
Workmanship
5.0
The quality of workmanship provided
Cost
5.0
How well they kept to the quoted cost
Schedule
5.0
How well they kept to schedule
Communications
5.0
Their professionalism and responsiveness
Showing 7 to 12 of 13 reviews

Get connected now with NZ’s largest trade professional network

Get started