Project

Client Needed a COA

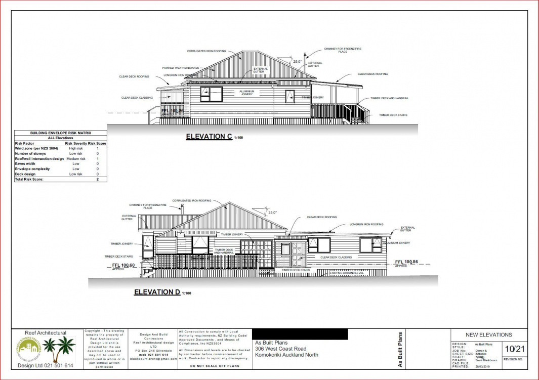
Project description

Client Needed a COA for his dwelling that was moved on 20 odd years ago and never got a Code Compliance Certificate. We had to redraw the whole property and engage an engineer to get the final COA once we got COA approved my client was able to sell with no problems.

Last updated on 25-08-2022