Project

Howick Extension

After
After
before
before
render
render
existing plan
existing plan
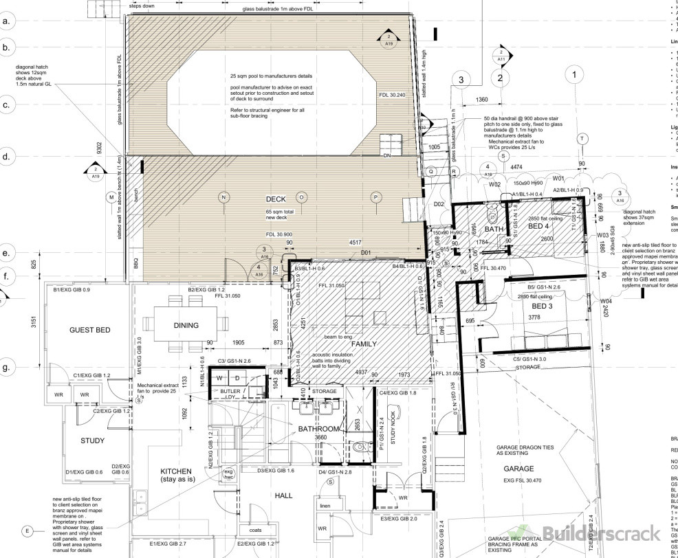
proposed plan
proposed plan

Project description

Family home extension - x2 new bedrooms, family room and large deck with pool

Last updated on 04-02-2026