Homeowners
Post a job
Cost estimator
Trade directory
For Tradies
Get work
Plans & prices
How it works
Inspiration
Inspiration Home
Project Stories
Project Advice
Project Home
Sign in
Sign up
This site requires Javascript to operate correctly
– please enable javascript in your browser settings or if you are not using a modern browser, please give
Chrome
or
Firefox
a try.
Our site is a bit slower due to high traffic. We appreciate your patience.
Home
Trades
Notion Architects Ltd
Projects
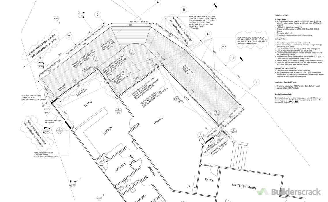
Howick Beach Renovation
Project
Howick Beach Renovation
After
Before
Render
existing plan
proposed plan
Project description
Deck extension and reclad
Last updated on 04-02-2026
HOMEOWNERS
Post a job
How it works
Job cost estimator
Trade directory
Homeowner FAQ
FOR TRADIES
Get work
Plans & prices
How it works
Trades FAQ
INSPIRATION
Project Home
Project Advice
Project Stories
ABOUT
About us
Help & Support
Code of conduct
Media
Partner with Builderscrack
Get work
Please wait...
Loading...