Project

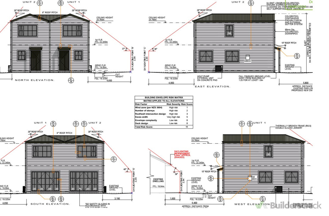
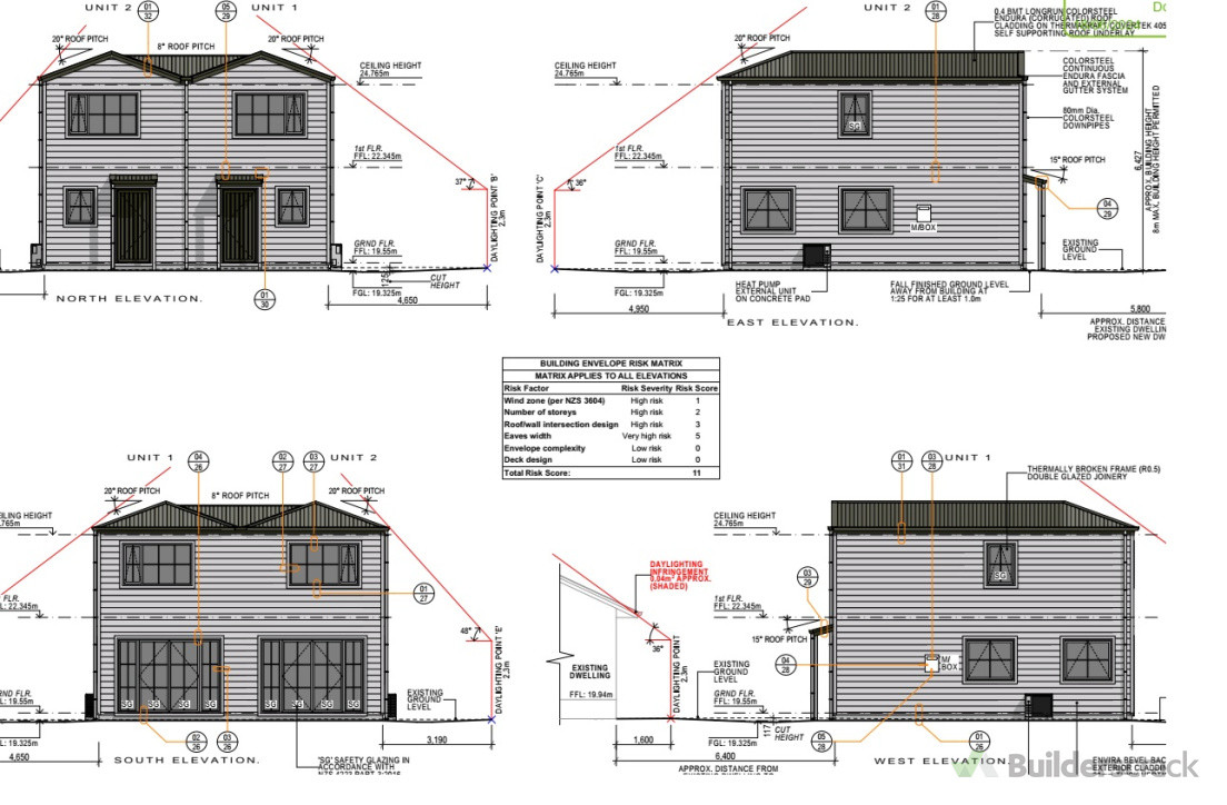
Multi unit dwellings, comprehensive developments

Project description

Thinking of a multi-unit development? Whether it’s a duplex, a comprehensive build, or a project you plan to subdivide later, Arki Design can bring your vision to life. With strong connections to planners, service engineers and other professionals, we’ll guide you smoothly through the process from concept to consent. Let’s create something that works — get in touch with us today.

Last updated on 01-09-2025