Project

Spec houses

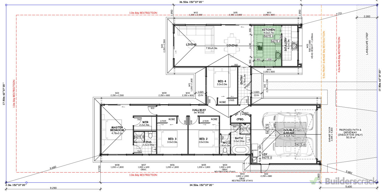
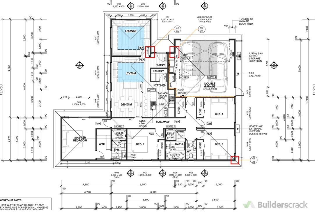
Project description

We’ve delivered hundreds of designs for first home buyers and investors, specializing in standard-spec builds. Our team is highly experienced in preparing building consent documentation quickly and efficiently, with minimal RFIs — saving time and money for our clients.

Because we handle a high volume of projects, we’re very familiar with local council rules and requirements. This means fewer delays and smoother approvals.

We offer quality, budget-friendly design and documentation packages tailored to meet your needs.

Last updated on 27-07-2025