Project

Rnovation and extension of 1 james present ave

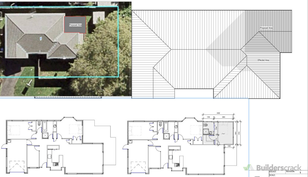
Project description

Extension of the proposed building, scope including cladding demolish, building new substrate for a 4X5M master suite, replacing previous clay tile roof to long run metal roof, New windows joinery and interior plasterboard painting and flooring refurbishment.

Last updated on 29-05-2024