Project

Renovation + New Deck

Deck3D
Deck3D
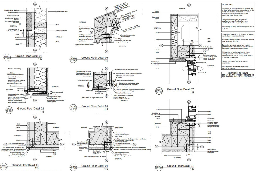
details
details
plans
plans
existing-images
existing-images
information
information

Project description

RBW - New timber framing + insulation + windows updated to new H1 code + New membrane deck + New cladding. BC ready! Construction is currently in progress.

Last updated on 09-10-2023