Project

Granny Flat Conversion

Existing & Proposed
Existing & Proposed
Proposed Enlarged
Proposed Enlarged
Fire Rated Systems Details
Fire Rated Systems Details
Noise Control Systems Detail
Noise Control Systems Detail
Wet Areas Details
Wet Areas Details

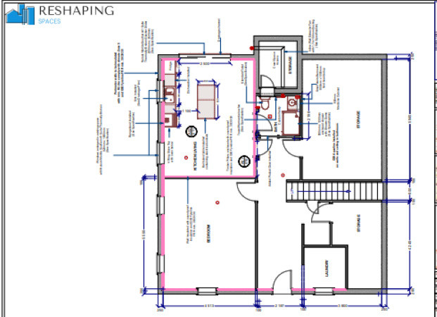
Project description

The Client was wanting to convert his basement garage into an attached granny flat. The space already contained a spacious bedroom and sizeable living areas, a bathroom and kitchen was to be added. The drawings were provided as part of his Building and Resource Consent.

Last updated on 30-09-2023