Project

Glenfield Bathroom Renovation

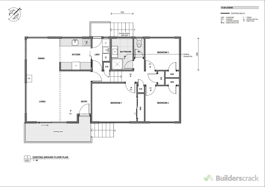
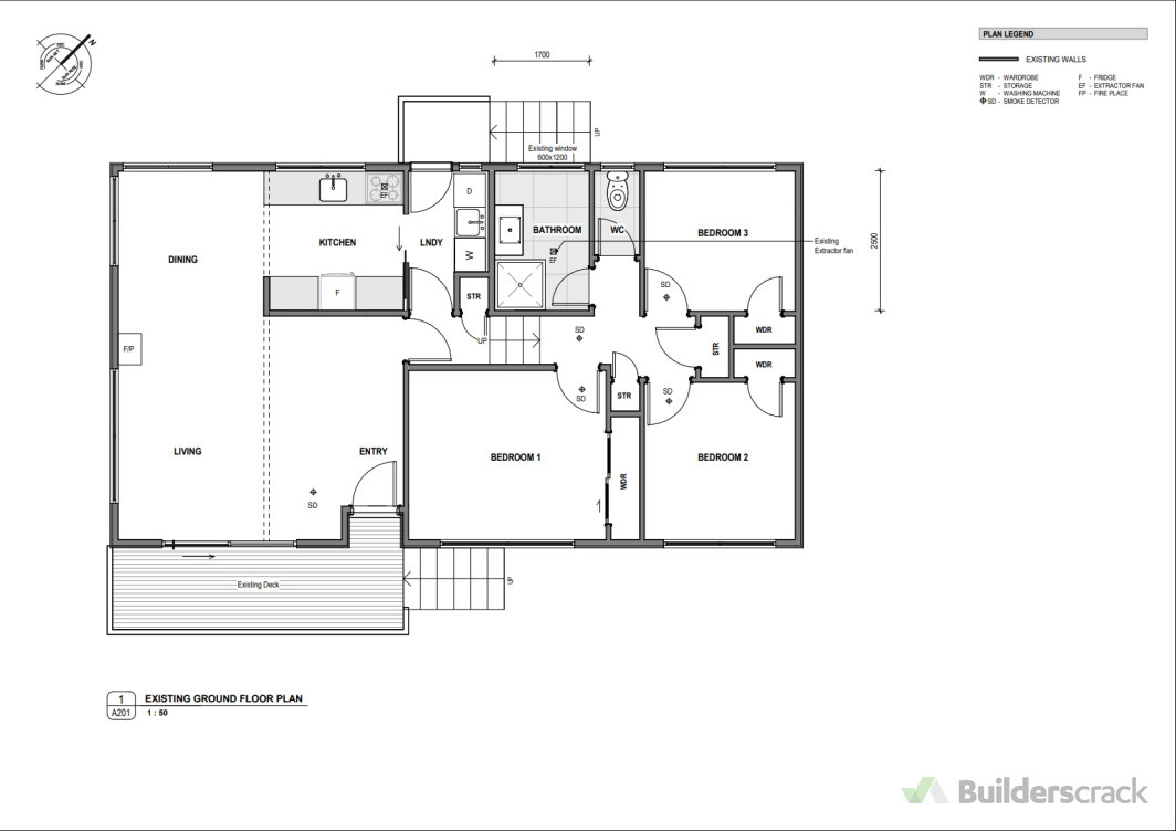
Existing Floor Plan
Existing Floor Plan
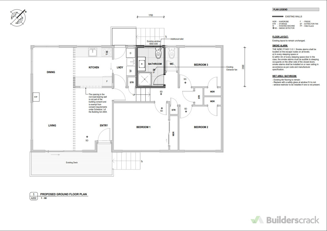
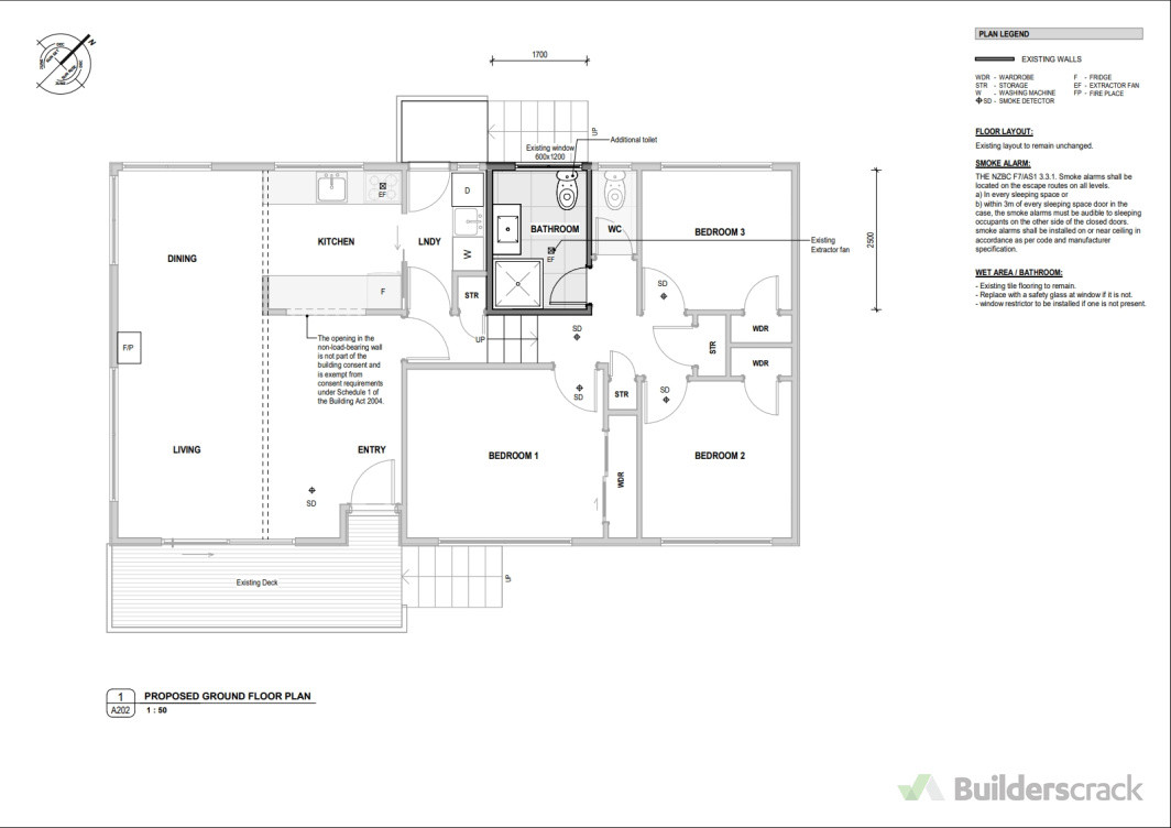
Proposed Floor Plan
Proposed Floor Plan

Project description

Building Consent for Bathroom renovation project

Last updated on 17-07-2025