Homeowners
Post a job
Cost estimator
Trade directory
For Tradies
Get work
Plans & prices
Trade Insights
How it works
Inspiration
Inspiration Home
Project Stories
Project Advice
Project Home
Sign in
Sign up
This site requires Javascript to operate correctly
– please enable javascript in your browser settings or if you are not using a modern browser, please give
Chrome
or
Firefox
a try.
Home
Trades
1100 Architecture
Projects
Mt Eden Renovation Project
Project
Mt Eden Renovation Project
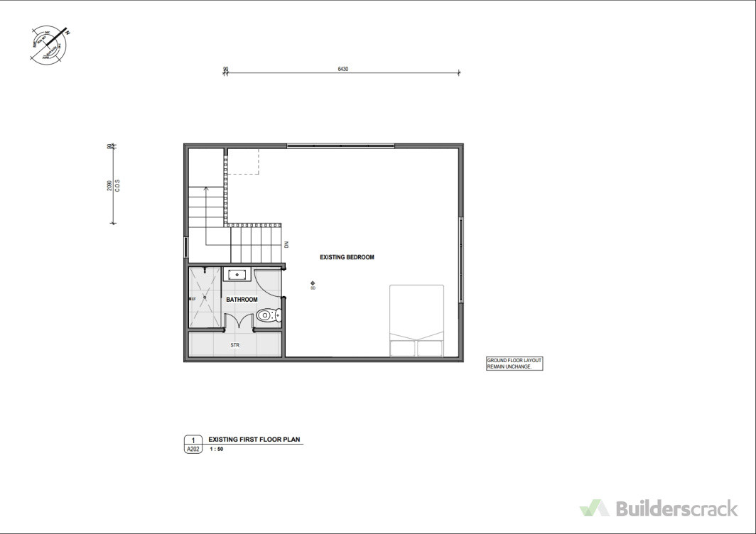
Existing Floor Plan
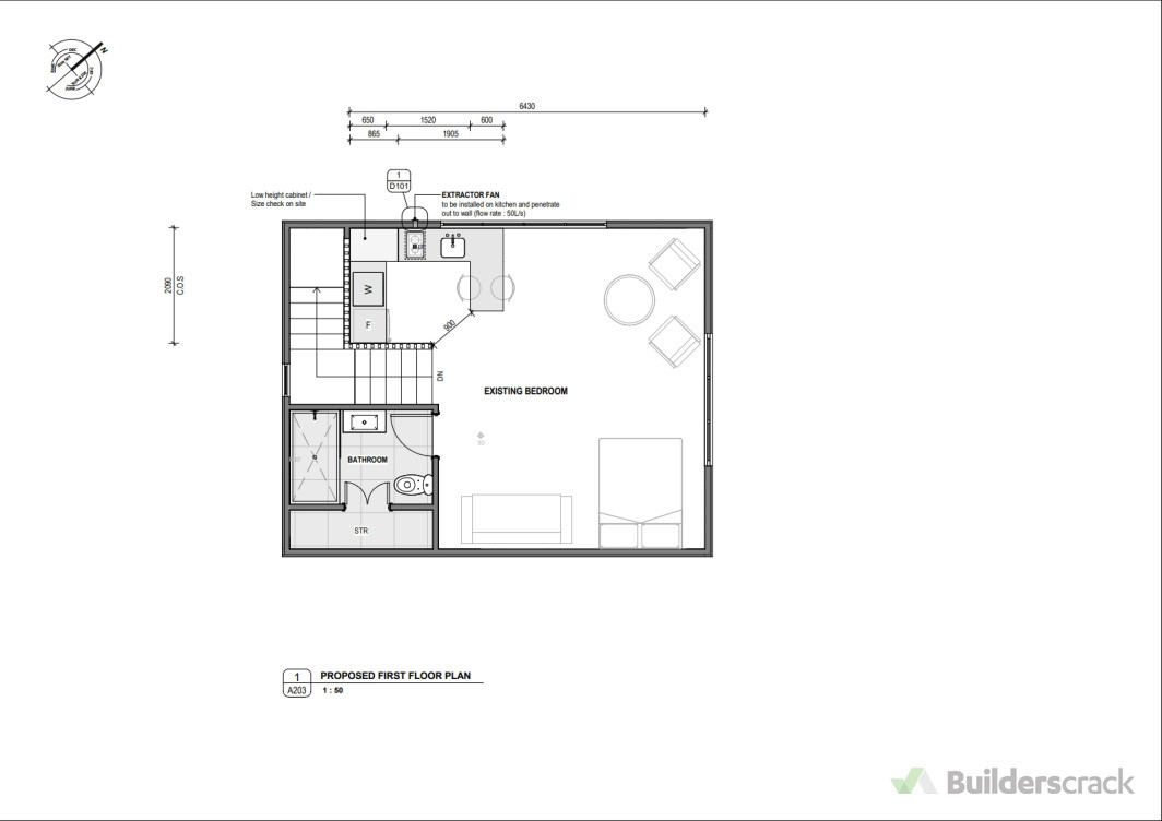
Proposed Floor Plan
Project description
Building Consent for Kitchen addition project
Last updated on 17-07-2025
HOMEOWNERS
Post a job
How it works
Job cost estimator
Trade directory
Homeowner FAQ
FOR TRADIES
Get work
Plans & prices
How it works
Trade Insights
Trades FAQ
INSPIRATION
Project Home
Project Advice
Project Stories
ABOUT
About us
Help & Support
Code of conduct
Media
Partner with Builderscrack
Get work
Please wait...
Loading...