Homeowners
Post a job
Cost estimator
Trade directory
For Tradies
Get work
Plans & prices
Trade Insights
How it works
Inspiration
Inspiration Home
Project Stories
Project Advice
Project Home
Sign in
Sign up
This site requires Javascript to operate correctly
– please enable javascript in your browser settings or if you are not using a modern browser, please give
Chrome
or
Firefox
a try.
Home
Trades
1100 Architecture
Projects
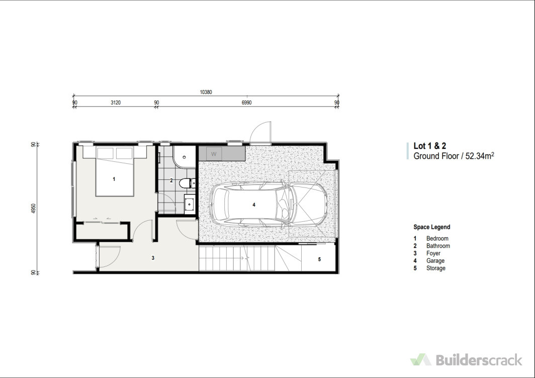
Sunnyfield Project
Project
Sunnyfield Project
Project description
Images for Multi unit project
Last updated on 17-07-2025
HOMEOWNERS
Post a job
How it works
Job cost estimator
Trade directory
Homeowner FAQ
FOR TRADIES
Get work
Plans & prices
How it works
Trade Insights
Trades FAQ
INSPIRATION
Project Home
Project Advice
Project Stories
ABOUT
About us
Help & Support
Code of conduct
Media
Partner with Builderscrack
Get work
Please wait...
Loading...