Archived job

Plaster existing house and extension

Job image

Job description

Interior plastering Castlecliff, Whanganui

Published on 1st October 2024

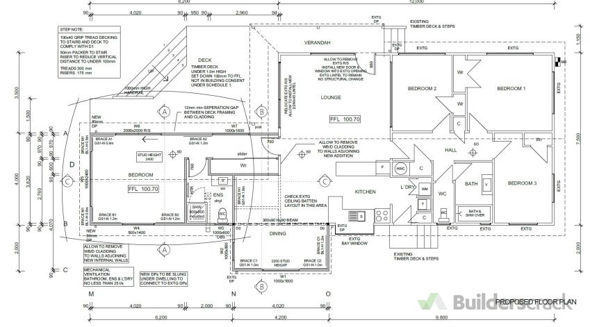
Hi there, I am looking for quotes for plastering a new build extension, which is the area on the left in the attached floor plan. The original house also needs some remedial work done to the gib just to straighten it up before painting.


Trade professionals

#1
Tradie 1
7 jobs
No longer connected
#2
Tradie 2
2 jobs
No longer connected
#3
Tradie 3
221 jobs
No longer connected

Get connected now with NZ’s largest trade professional network

Get started