Review

Kitchen Island Relocation

Job image
Job image
Job image
Job image
Job image

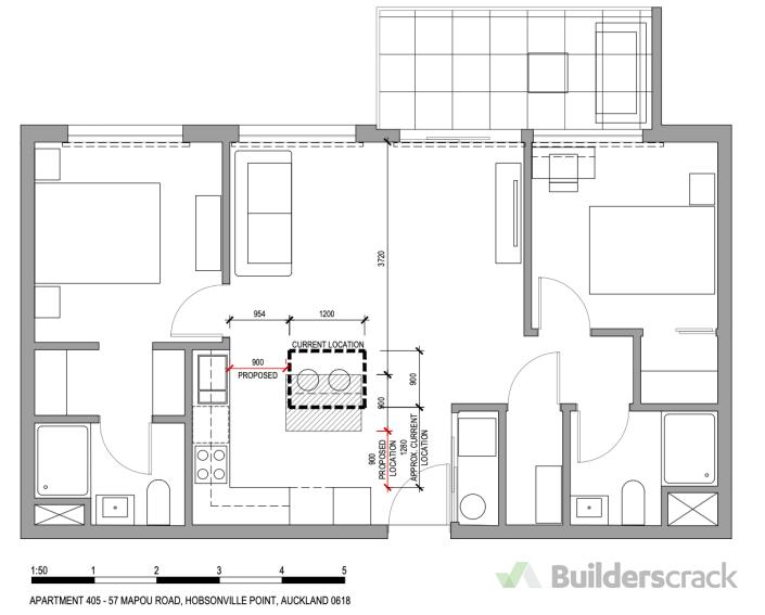
Job description

Kitchen Renovation Hobsonville, Waitakere

Published on 17th August 2025

Looking for someone to move my Apartment kitchen island between 13–17 October. Needs to be done in one day. The building is undergoing major renovations, and this is the only window available before moving back. The island is an MDF cabinet with a quartz benchtop. No plumbing or electrics attached. Job involves: Detaching the island Relocating it to the new position (plan and photos attached) Filling/sealing the old fixing holes in the floor I believe the flooring runs under the island, but if it doesn’t, extra flooring may be needed. That would be a separate job and could be arranged for another day with the renovation contractor.


Full workmanship review

Workmanship
5.0
Cost
5.0
Schedule
5.0
Communications
5.0

"Excellent job, great level of craftsmanship and skill. They know what they are doing, offering assertive solutions based on experience."

Work carried out by an employee of the company

Review posted by Carlos on 13th October 2025


Tradesperson reply

"Thanks for the review."

Verified Builderscrack review

Get connected now with NZ’s largest trade professional network

Get started