Review

Hard landscaping - paving, steps and edging

Job image
Job image
Job image
Job image
Job image
Job image
Job image
Job image

Job description

General Landscaping Milford, North Shore

Published on 5th October 2025

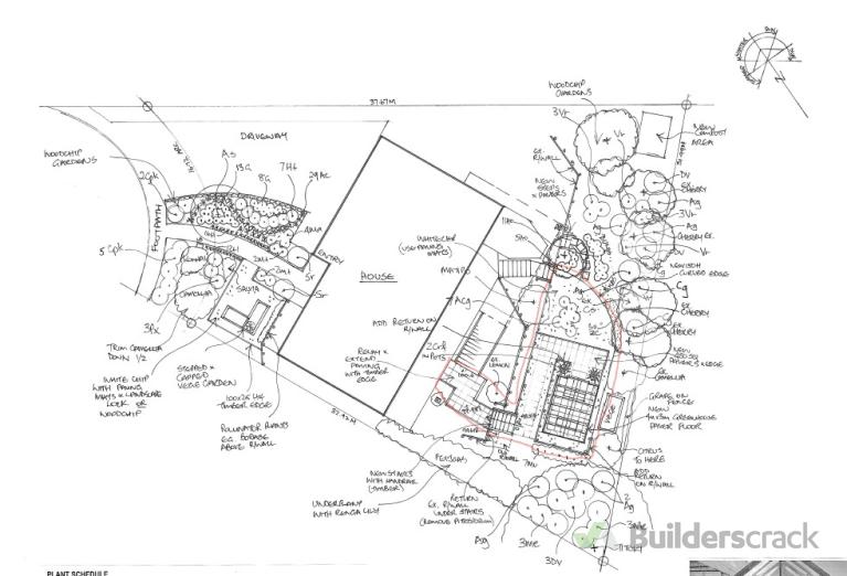
As per the bit circled in red in the attached design: - install paving, - build a set of stairs through two existing retaining walls, - prepare an area for a greenhouse and - install steel edging. We are also looking for the supply and installation of a greenhouse including benches and garden bed/s (details to be confirmed). We think we'll need another small set of stairs (perhaps sleepers) that aren't on the plans to transition between levels. To be discussed.


Full workmanship review

Workmanship
4.0
Cost
4.0
Schedule
3.0
Communications
3.0

"I enjoyed working with Jacques. He was interested in our landscaping project and brought some good thinking to some design issues. The quality of his labour varied over the job, so some of the workmanship was better than other parts. The greenhouse he custom built is great, and he was open to fixing some of the minor workmanship faults at his cost. I think he underestimated the size of the job so it took longer than expected. He communicated well usually, could have kept us up to date more."

Work carried out by the owner & subcontractors

Review posted by Phil on 30th November 2025


Tradesperson reply

"Thanks for the feedback and for the opportunity to work on your project. I’m really pleased with how the greenhouse and landscaping turned out — I’ll upload some photos shortly as the finished result looks great. I appreciate your comments around communication and timing as well. I did injure my foot partway through the job which slowed things down a bit, but I’ve put better systems in place to keep clients updated if delays happen. Thanks again and all the best with your space."

Verified Builderscrack review

Get connected now with NZ’s largest trade professional network

Get started