Live job

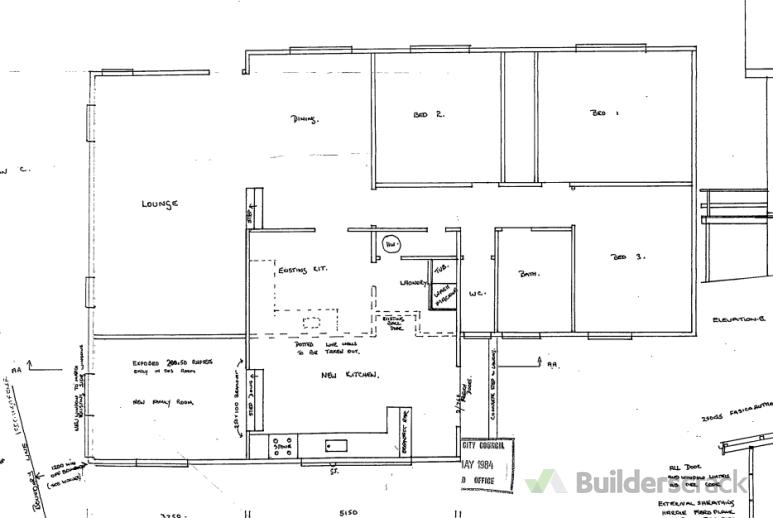
Layout of kitchen/dinning/laundry.

Job image

Job description

Residential Interior Design Glenfield, North Shore

Published on 11th January 2026

I'm renovating a house that I will be selling. The kitchen/dinning/laundry/lounge is an odd shape/layout, so I'm wanting some help coming up with a functional and visually appealing layout. Willing to move walls if needed, but looking for cost effective options. Side note - I trade properties but struggle with the design. So someone who can offer me quick guidance on all things design ongoing would be great!


man with saw
Don't miss out!

Your competitors are interested in this job. Chase now to be in the running to get connected.

Get connected now with NZ’s largest trade professional network

Get started