Archived job

Renovation

Job image
Job image

Job description

Home Extensions & Alterations Papamoa Beach, Tauranga

Published on 23rd September 2025

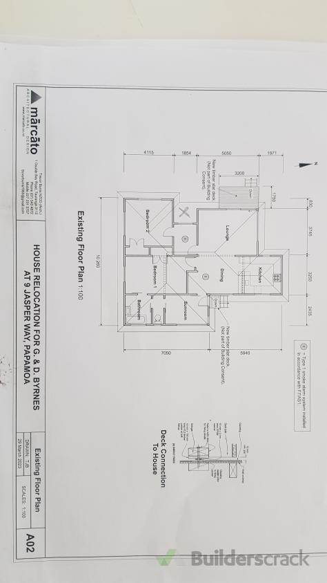
To close in opening of single level ex state house for Small bathroom facility inc extending floor.


Trade professionals

Finding available tradies …

Get connected now with NZ’s largest trade professional network

Get started