Live job

New Build for Consented Granny Flat with Art Studio, Decks, Patios– Hawke’s Bay

Job image
Job image
Job image
Job image
Job image
Job image
Job image
Job image
Job image
Job image
Job image
Job image
Job image
Job image

Job description

New Homes Tamatea, Napier

Published on 24th February 2026

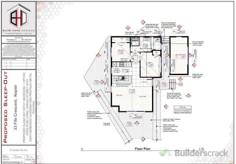
Accurate Price/Tender Requests for a Fully Consented New Build Minor Dwelling - 60m² Granny Flat with 12m² Art Studio & 60m² (2 x Ramps 2 x Decks) 2 x Patio Roofs & 3 x Carports - (Required to be built by late 2026 early 2027 latest) Full drawings, Specifications and Schedule are available and will be provided to shortlisted builders. We are looking for builders with recent experience in minor dwellings / granny flats. Pricing timeframe: [3–4 weeks].


Trade professionals

#1
Tradie 1
23 jobs
Connected
#2
Tradie 2
26 jobs
Connected
#3
Tradie 3
8 jobs
Connected

Get connected now with NZ’s largest trade professional network

Get started